








Aceasta proprietate a fost deja vanduta! Pentru oferte similare contactati agentul
Comision0%, Str. Dorna 10, 3 camere, etaj 3 SM 440238
Satu Mare, Carpati 2
76.000€
Camere
3
Suprafata utila
80 mp
Suprafata construita
100 mp
Etaj
Etaj 3
Bai
2
An constructie
1985
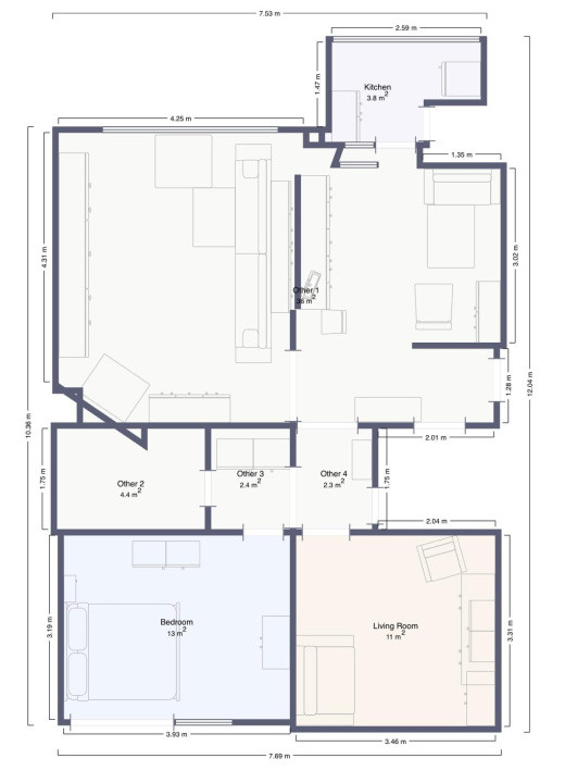
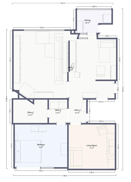
- ID:P11414
- Nr. camere:3
- Nr. dormitoare:2
- S. utila:80.00 mp
- S. balcoane:10.00 mp
- S. construita:100.00 mp
- Comp.:Decomandat
- Confort:2
- Etaj:Etaj 3
- Nr. bucatarii:1
- Nr. bai:2
- Nr. balcoane:2
- An constructie:1985
- Structura:Caramida
- Tip imobil:Bloc
- Regim inaltime:P+4
- Orientare:Sud
Descriere
APARTAMENT CU 3 CAMERE DECOMANDATE DORNA 10, SATU MARE – PREȚ 76.000 €
Descoperiți un cămin generos, cu o compartimentare excelentă și o localizare de invidiat, ideal pentru familia dumneavoastră! Vă prezentăm un apartament spațios de 3 camere, situat la adresa Strada Dorna, Bl. CD10, Ap. 8, Satu Mare.
🏡 Confort și Funcționalitate de Excepție
Acest apartament de 82 mp utili oferă toate dotările necesare pentru o viață modernă și echilibrată
Compartimentare Decomandată: Vă bucurați de un flux optim, fără spații irosite, asigurând intimitatea și funcționalitatea necesare.
Grupuri Sanitare Dinstincte: Un avantaj major! Apartamentul dispune de o baie completă (cu cadă/duș) și o a doua cameră utilitară amenajată ca spălătorie, optimizând spațiul.
Încălzire Modernă: Confortul termic este asigurat de încălzirea centrală (centrală proprie ) și de ferestrele termoizolante (termopane), completate de instalația cu țevi Henco.
Finisaje Funcționale: Apartamentul beneficiază de parchet laminat și se vinde mobilat cu dotări esențiale: aragaz, frigider și mașină de spălat.
Spații Liniștite și Luminoase: Dormitoarele au vedere spre sud și spre curtea interioară plină de verdeață, garantând liniștea și o lumină naturală optimă.
Spații Exterioare și Depozitare: Vă bucurați de 2 balcoane și de un beci propriu generos, ideal pentru depozitare în siguranță.
📍 Adresa Ta în Inima Comunității: Puncte de Interes în Proximitate
Locuința este situată într-o zonă care oferă acces imediat la toate serviciile esențiale. Iată câteva dintre cele mai importante puncte de interes din vecinătate:
Clinici și Sănătate: Clinicile Doctor Coica, Farmacia Sf. Treime.
Biserică: Biserica Nașterea Domnului.
Educație: Școli și Grădinițe de calitate (ex: Grădinița cu program prelungit Nr. 11, Școala Gimnazială "Octavian Goga").
Cumpărături și Servicii: CBA Barta Ati, Unicarm, BSG Amanet & Exchange.
Cultură: Librăria Compas.
Transport: Stații de autobuz/troleibuz (Parc Micro 17, Carpați II).
Acest apartament, deși necesită renovare, este o pânză goală ce oferă o bază solidă (3 camere decomandate, 2 grupuri sanitare, centrală proprie) și un potențial imens de personalizare.
Citeste mai mult
Descoperiți un cămin generos, cu o compartimentare excelentă și o localizare de invidiat, ideal pentru familia dumneavoastră! Vă prezentăm un apartament spațios de 3 camere, situat la adresa Strada Dorna, Bl. CD10, Ap. 8, Satu Mare.
🏡 Confort și Funcționalitate de Excepție
Acest apartament de 82 mp utili oferă toate dotările necesare pentru o viață modernă și echilibrată
Compartimentare Decomandată: Vă bucurați de un flux optim, fără spații irosite, asigurând intimitatea și funcționalitatea necesare.
Grupuri Sanitare Dinstincte: Un avantaj major! Apartamentul dispune de o baie completă (cu cadă/duș) și o a doua cameră utilitară amenajată ca spălătorie, optimizând spațiul.
Încălzire Modernă: Confortul termic este asigurat de încălzirea centrală (centrală proprie ) și de ferestrele termoizolante (termopane), completate de instalația cu țevi Henco.
Finisaje Funcționale: Apartamentul beneficiază de parchet laminat și se vinde mobilat cu dotări esențiale: aragaz, frigider și mașină de spălat.
Spații Liniștite și Luminoase: Dormitoarele au vedere spre sud și spre curtea interioară plină de verdeață, garantând liniștea și o lumină naturală optimă.
Spații Exterioare și Depozitare: Vă bucurați de 2 balcoane și de un beci propriu generos, ideal pentru depozitare în siguranță.
📍 Adresa Ta în Inima Comunității: Puncte de Interes în Proximitate
Locuința este situată într-o zonă care oferă acces imediat la toate serviciile esențiale. Iată câteva dintre cele mai importante puncte de interes din vecinătate:
Clinici și Sănătate: Clinicile Doctor Coica, Farmacia Sf. Treime.
Biserică: Biserica Nașterea Domnului.
Educație: Școli și Grădinițe de calitate (ex: Grădinița cu program prelungit Nr. 11, Școala Gimnazială "Octavian Goga").
Cumpărături și Servicii: CBA Barta Ati, Unicarm, BSG Amanet & Exchange.
Cultură: Librăria Compas.
Transport: Stații de autobuz/troleibuz (Parc Micro 17, Carpați II).
Acest apartament, deși necesită renovare, este o pânză goală ce oferă o bază solidă (3 camere decomandate, 2 grupuri sanitare, centrală proprie) și un potențial imens de personalizare.
Video
Tur virtual
Specificatii
Curent
Apa
Canalizare
Gaz
Fibra optica
Centrala proprie
Calorifere
Vopsea lavabila
Faianta
Parchet
Gresie
Ferestre PVC
Usa intrare Lemn
Usa interior Lemn
Boxa la subsol
Bucatarie Mobilata
Apometre
Contor gaz
Partial mobilat
Interfon
Acoperis
Curte
Miklos Varga
0774485381
Esti interesat de aceasta proprietate ?