








Str. Dariu Pop 15, Apartament 2 camere langa PENNY Market!
Satu Mare, Micro 14
41.000€
Camere
2
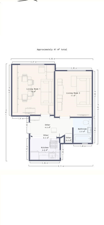
Suprafata utila
41 mp
Suprafata construita
52 mp
Etaj
Etaj 4
Bai
1
An constructie
1980
- ID:P8659
- Nr. camere:2
- Nr. dormitoare:1
- S. utila:41.00 mp
- S. balcoane:3.00 mp
- S. construita:52.00 mp
- Comp.:Decomandat
- Confort:1
- Etaj:Etaj 4
- Nr. bucatarii:1
- Nr. bai:1
- Nr. balcoane:1
- An constructie:1980
- An renovare:2022
- Structura:Caramida
- Tip imobil:Bloc
- Regim inaltime:P+4
- Clasa energetica:C
Descriere
Apartament 2 camere,str. Dariu Pop 15 langa Penny Market! 🏡
📍 Locație: Str. Dariu Pop, Satu Mare – în apropiere de Shopping City, școli, magazine și transport public.
📐 Suprafață: 41 mp
🏢 Etaj: 4/4
Caracteristici cheie:
🛏️ 2 camere decomandat – spațiu bine compartimentat, ideal pentru confortul tău
🍽️ Bucătărie open-space – modernă și funcțională
🛁 Baie cu geam – lumină naturală și ventilație optimă
🌞 Balcon generos – perfect pentru relaxare
🔥 Încălzire: Boiler pentru apă caldă + convector pentru eficiență termică
🅿️ Blocul este lipit de parcarea Penny Market – cumpărături la îndemână
🌳 Parcare și spații verzi în zonă
Avantaje:
🚶 Totul la 5 minute pe jos!
🛒 Penny Market, Profi, Shopping City
🏫 Grădinița cu Program Prelungit Nr. 9, Liceul German Johann Ettinger
🚍 Stații de transport public, Janosi Trans
🏢 Oficiu Poștal, Jandarmeria Satu Mare
🏞️ Zone de agrement și parcuri
🏠 Ideal pentru locuit sau investiție!
Citeste mai mult
📍 Locație: Str. Dariu Pop, Satu Mare – în apropiere de Shopping City, școli, magazine și transport public.
📐 Suprafață: 41 mp
🏢 Etaj: 4/4
Caracteristici cheie:
🛏️ 2 camere decomandat – spațiu bine compartimentat, ideal pentru confortul tău
🍽️ Bucătărie open-space – modernă și funcțională
🛁 Baie cu geam – lumină naturală și ventilație optimă
🌞 Balcon generos – perfect pentru relaxare
🔥 Încălzire: Boiler pentru apă caldă + convector pentru eficiență termică
🅿️ Blocul este lipit de parcarea Penny Market – cumpărături la îndemână
🌳 Parcare și spații verzi în zonă
Avantaje:
🚶 Totul la 5 minute pe jos!
🛒 Penny Market, Profi, Shopping City
🏫 Grădinița cu Program Prelungit Nr. 9, Liceul German Johann Ettinger
🚍 Stații de transport public, Janosi Trans
🏢 Oficiu Poștal, Jandarmeria Satu Mare
🏞️ Zone de agrement și parcuri
🏠 Ideal pentru locuit sau investiție!
Video
Specificatii
Curent
Apa
Canalizare
Gaz
CATV
Convectoare
Izolatie Exterior
Vopsea lavabila
Parchet
Ferestre PVC
Usa intrare Metal
Bucatarie Partial mobilata
Apometre
Contor gaz
Partial mobilat
Interfon
Miklos Varga
0774485381
Esti interesat de aceasta proprietate ?